Wishaw Terrace, , EH7 6AF
Bed Flat For Rent
Rent: £950.00 PCM
Available From: Mon, 18 May 2026
Property Type: House
Furnished: Unfurnished
About This Property
**BOOK VIEWINGS ONLINE AT GLENHAM PROPERTY WEBSITE*** Well-presented one-bedroom, ground floor flat occupying an enviable location in the highly sought-after Meadowbank area to the east of the city centre.
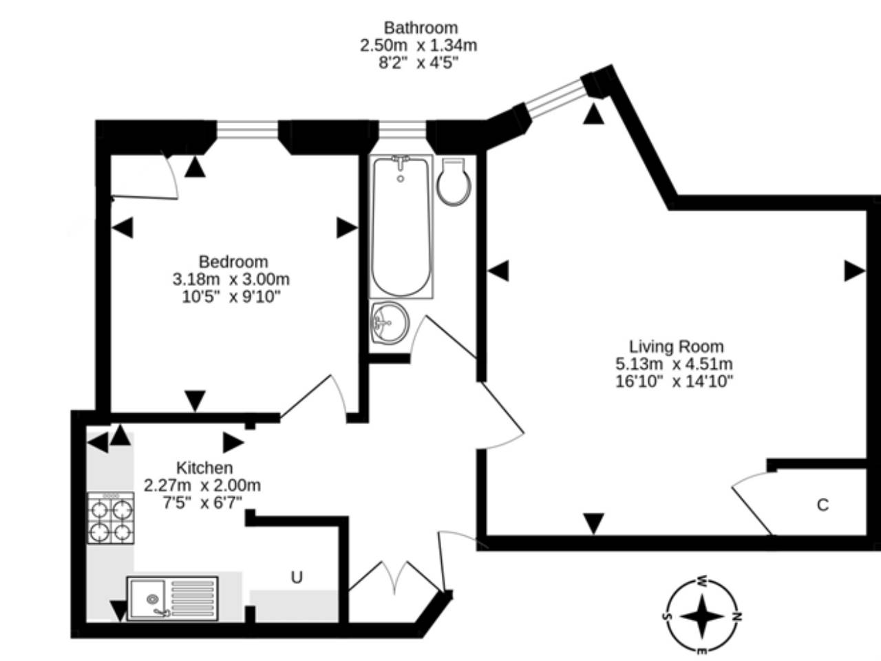
Accommodation consists of hallway leading to separate kitchen, well-proportioned bedroom and a spacious living room with further storage. Completing the accommodation is the bathroom with shower over the bath.
The property is ideally located, within easy reach of the city centre, but also with an excellent range of local amenities close at hand, including the Meadowbank Retail Park, and a selection of smaller local retailers. Meadowbank Sports Centre, a former Commonwealth Games venue, offers a range of leisure and fitness facilities, with Holyrood Park, Arthur’s Seat, and the Portobello waterfront offering vast open walking spaces. Regular bus services provide easy access to various parts of the city, and the city bypass provides excellent transport links to the motorway.
Please Note the successful applicant will be required to pay a refundable Holding Deposit of £400 whilst the referencing is undertaken – this will be deducted from your final deposit payment.
Water: Mains
Sewerage: Mains
Broadband: Fibre optic, ultra-fast
Mobile reception: Good
Construction type: Stone, pitched roof
Parking: On street permit
EPC – D
Council Tax – B
Landlord Reg: 532869/230/25102
LARN – 1811020
*Please note the photographs within this advertisement may have been taken during a previous tenancy and as a result you should not rely only on these as an accurate representation of furnishings and items included in the agreement. A viewing is required to ensure you have an accurate understanding of the condition and contents of the property.
